Вход Регистрация
Оборудование для производства строительных материалов

№145730Линия по производству гашеной извести 200 тонн в сутки

195 000 000 ₽ / шт
под заказ

Цены в категории: 98 000 ₽ — 100 000 000 ₽

Перезвоните мне

Как купить товар?

Москва — На сайте с 29 сен 2025
  • Телефон: +7926*****76
  • Телефон: +7-499-390-17-84
  • Whatsapp: +7-926-895-90-76
  • Telegram: @AndreyBelyaev84
  • Viber: +7-926-895-90-76
  • VK: https://vk.com/sttsgroup
  • Email: info@s-t-t-s.ru
  • Адрес компании: г Москва, пр-кт Андропова, д 22
    • Пожаловаться

Описание

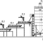
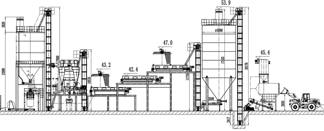
STTS Group предлагает проектирование и поставку под ключ линии по производству гашеной извести 200 тонн в сутки.
Линия по производству гашеной извести 200 тонн в сутки состоит из двух частей:
1. Линии по производству негашеной извести (на базе вращающейся печи 2,5×50м);
2. Линии по гидратации извести (гашению).

Линия по производству негашеной извести на 200 тонн в сутки:
1. Секция подготовки сырья - дробление, предварительная сушка и хранение;
2. Секция подачи в печь;
3. Секция обжига - предварительный нагреватель + печь 2,5×50м + охлаждение;
4. Секция транспортировки и хранения готового продукта;
5. Секция очистки выхлопных газов;
6. Система автоматизации;
7. Лаборатория.

Линия по гидратации извести (гашению) 250 тонн в сутки:
1. Секция подготовки сырья - дробление и хранение;
2. Секция подачи в гидрататор;
3. Секция гидратации - состоит от 1 до 3 гидрататоров; гидрататор является основным агрегатом данной установки;
4. Классификатор;
5. Секция выгрузки, хранения и упаковки готового продукта.

ОПИСАНИЕ:
Модель LPU200TD;
Прогнозируемая производительность: 200 тонн негашеной или гашеной извести из известняка естественной влажности;
Суточное потребление известняка около 470 тонн (влажностью 15% и с ППП 50%);
Установленная мощность около 900 кВт;
Суточное потребление электроэнергии около 18000 кВт•ч;
Суточное потребление воды около 50 тонн;
Суточное потребление газа около 19000 Нм3;
Персонал – 5-7 человек в смену;
Размеры установки в собранном состоянии около 100*30*18 метров (не включает склад готовой продукции);
Содержание частиц в фильтруемом воздухе составляет около 30-40 мг/м³ (возможно снижение при помощи использования более современной системы фильтрации)
Режимы управления: ручной, полуавтоматический, полностью автоматический;
Тип сборки: модульный;

Подробная комплектация: по запросу

О технологии производства извести. Гашение извести:
Негашеная известь - это оксид кальция. Технология производства негашеной извести представляет собой обжиг известняка до получения оксида кальция или негашеной извести. Известняк представляет собой кальцит, имеющий формулу CaCO3, при обжиге происходит реакция: CaCO3 -> CaO + CO2.
Гашеная известь - это гидроксид кальция. Технология производства гашеной извести представляет собой гидратацию оксида кальция (по сути - это добавление воды). При гидратации происходит следующая химическая реакция: CaO + H2O -> Ca (OH)2 с выделением тепла.

Цены

Цена
195 000 000 ₽ / шт

Где купить


Оплата

  • Оплата по счету
  • Электронные деньги

Доставка

Доставка в г. Москва, самовывоз г Москва, пр-кт Андропова, д 22

Гарантия

Команда Флагма размещает объявления поставщиков и продавцов после тщательной проверки, однако это не гарантирует безопасной сделки между вами и продавцом. Перед принятием решения о покупке проверьте юридические данные компании и отзывы о ней на странице отзывов и в интернете.

Отзывы

  • 25 апр
  • 96
Оборудование для производства строительных материалов
Металлоформа прогона 1ПР2К на 8 прогонов
760 000 ₽
Оборудование для производства строительных материалов
Металлоформа для изготовления дорожной плиты П30.18
162 000 ₽
Оборудование для производства строительных материалов
Металлоформа для бетонного щелевого пола
196 000 ₽
Оборудование для производства строительных материалов
Металлоформа трехлучевого фундамента ТСА
470 000 ₽
Оборудование для производства строительных материалов
Металлоформа фундамента полурам РПС
290 000 ₽
Оборудование для производства строительных материалов
Металлоформа универсальная для плит ПАГ-14, ПАГ-18, ПАГ-20
1 460 000 ₽
Оборудование для производства удобрений
Линия по производству комплексных удобрений NPK 20 т/ч
100 000 000 ₽
Оборудование для производства строительных материалов
Линия по производству газобетона (автоклавных газобетонных блоков AAC) на 165-180 м3 в сутки (50 000...
91 500 000 ₽
Оборудование для производства древесного угля
Линия активации угля 2,5 тонн в сутки (750 тонн в год) из отсева березового угля
49 500 000 ₽
Дробильно-измельчительное оборудование
Линия по пр-ву минерального порошка (МП) 20-30 т/ч на базе двух мельниц MTW-138
54 500 000 ₽
Дорожно-строительное оборудование
АБЗ LyRoad BAP1500-6 (120 тонн/час, смеситель 1500 кг, 6 фракций)
66 500 000 ₽
Дорожно-строительное оборудование
АБЗ Shandong Luda QLB1000-5 (100 тонн/час, смеситель 1200 кг, 5 фракций)
43 500 000 ₽